MẪU NHÀ PHỐ "kHÔNG GIANG SỐNG TIỆN NGHI CHO GIA ĐÌNH HIỆN ĐẠI"
Mẫu thiết kế nhà phố 5x20m thường được xây dựng trên những lô đất nhỏ trong khu vực đô thị. Với diện tích không quá lớn, thiết kế này yêu cầu sự sáng tạo và khéo léo trong việc bố trí không gian để đảm bảo mọi nhu cầu sinh hoạt của gia đình.
Công năng của Ngôi nhà
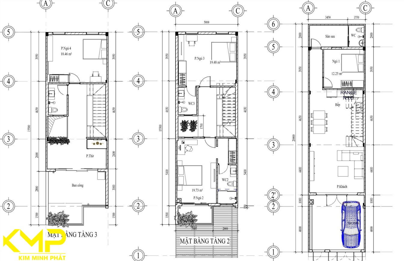
Với 3 lầu và từ 3 đến 4 phòng ngủ, mẫu nhà này có thể đáp ứng nhu cầu của những gia đình từ 4 đến 6 thành viên. Các không gian chức năng bao gồm:
Tầng trệt: Thường được thiết kế làm garage để xe, phòng khách, bếp và phòng ăn. Thiết kế mở là xu hướng hiện nay, giúp không gian trở nên rộng rãi và thoáng đãng hơn.
Tầng 1: Thường dành cho các phòng ngủ. Nếu gia đình có trẻ nhỏ hoặc người già, bạn có thể bố trí phòng ngủ cho các thành viên này tại tầng này để thuận tiện di chuyển.
Tầng 2: Tầng này có thể bố trí thêm phòng ngủ hoặc phòng làm việc, cùng với một không gian sinh hoạt chung để cả gia đình có thể quây quần bên nhau.
Tầng mái: Có thể thiết kế thành sân thượng hoặc khu vực giặt phơi, vừa tiết kiệm không gian lại mang lại sự thư giãn cho gia đình.

Mẫu nhà 3 tầng 3 phòng ngủ
Bố trí diện tích các phòng
Đối với mẫu nhà phố 5x20m, diện tích mỗi phòng có thể được bố trí như sau:
Phòng khách: khoảng 20m²
Bếp + Phòng ăn: khoảng 15-20m²
Phòng ngủ chính: khoảng 15-18m²
Phòng ngủ phụ: khoảng 12-15m²
Phòng làm việc: khoảng 10m²
Phòng tắm và vệ sinh: khoảng 4-6m²

Mẫu nhà 3 tầng 4 phòng ngủ
Thiết kế bên ngoài
Kiến trúc hiện đại
Mẫu thiết kế nhà phố thường mang phong cách hiện đại với các đường nét đơn giản nhưng tinh tế. Sử dụng các vật liệu như kính, gạch và bê tông để tạo nên vẻ đẹp sang trọng và thanh lịch.
Màu sắc
Màu sắc là yếu tố quan trọng trong thiết kế ngoại thất. Những gam màu sáng như trắng, xám hoặc xanh nhạt giúp ngôi nhà trông rộng rãi và thoáng đãng hơn. Bạn cũng có thể thêm một số điểm nhấn bằng cách sử dụng màu sắc đậm hơn cho cửa ra vào hoặc ban công.
Trang trí nội thất
Phòng Khách
Nên lựa chọn các món đồ nội thất hiện đại, đơn giản và đa chức năng để tiết kiệm không gian. Sofa góc hoặc ghế sofa băng sẽ là lựa chọn lý tưởng cho phòng khách nhỏ.
Bếp và phòng ăn
Khu vực bếp nên được thiết kế mở với bàn ăn nhỏ gọn để gia đình có thể thưởng thức bữa ăn cùng nhau. Tủ bếp cao kịch trần cũng là lựa chọn thông minh giúp tối ưu hóa diện tích lưu trữ.
Phòng ngủ
Mỗi phòng ngủ nên có cửa sổ lớn để ánh sáng tự nhiên tràn ngập, giúp không gian luôn sáng sủa và thoáng đãng. Nội thất tối giản nhưng vẫn đầy đủ tiện nghi sẽ tạo cảm giác dễ chịu cho người sử dụng.
Mẫu thiết kế nhà phố 5x20m với 3 lầu và từ 3 đến 4 phòng ngủ là lựa chọn lý tưởng cho những gia đình sống tại đô thị lớn. Với sự kết hợp hoàn hảo giữa công năng sử dụng, tính thẩm mỹ và tiện nghi, mẫu nhà này không chỉ đáp ứng nhu cầu sinh hoạt mà còn mang lại không gian sống lý tưởng cho gia đình bạn.